Quadrilocale in vendita

Corte Franca, Via Roma - Timoline
Informazioni in agenzia
4 locali 4 locali
150 Mq 150 Mq
2 bagni 2 bagni

Quadrilocale in vendita

Corte Franca, Via Roma - Timoline

Descrizione annuncio

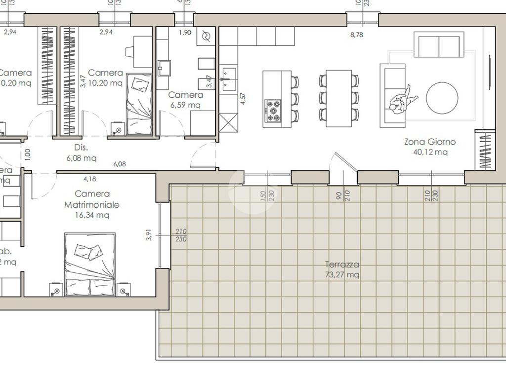
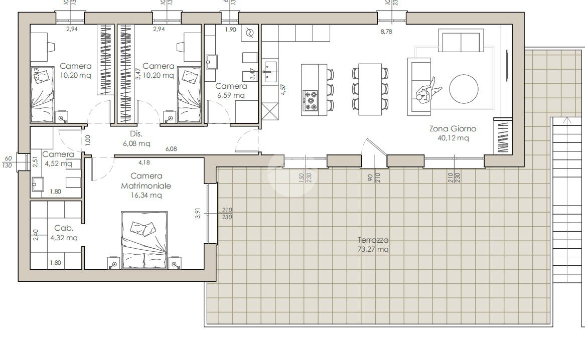
A Colombaro di Corte Franca, proponiamo in vendita cantiere di nuova realizzazione con otto unità abitative. Le soluzioni saranno di due tipologie:

- quattro quadrilocali al piano terra con giardino e box doppio

- quattro attici quadrilocali con terrazze di oltre 70 mq e box doppio

Alcune delle soluzioni, dotate di tutti i confort e in classe energetica A, godranno di una vista sul lago d'iseo e saranno disponibili nella seconda metà del 2027. Per qualsiasi informazione/capitolato chiamare in agenzia.

Mostra tutto

Nelle vicinanze

Trasporto pubblico Trasporto pubblico
Borgonato-Adro
Borgonato-Adro
1,7 Km
Provaglio-Timoline
Provaglio-Timoline
2,0 Km
Trasporto pubblico
2,3 Km
Provaglio-Timoline
Provaglio-Timoline
2,0 Km
Ricariche auto elettriche Ricariche auto elettriche
Franciacorta Golf Club
1,5 Km
Gardauno Provaglio
2,6 Km
Scuole Scuole
CFP Zanardelli
2,8 Km
Scuole
2,9 Km
Farmacia Farmacia
Farmacia
2,7 Km
Farmacia Maculotti
2,8 Km
Supermercati Supermercati
Esselunga
950 m
Bar Bar
Bar
2,2 Km
Number one
2,4 Km
Ristoranti Ristoranti
Pizzeria Da Gianni 2
410 m
Ristoranti
420 m
Due Colombe Ristorante Al Borgo Antico
1,7 Km
Colombara
1,8 Km
Trattoria Fontanì
2,2 Km
Mostra tutto

Caratteristiche

Rif.:
61194358
Piano:
1 di 2 (Piano attico)
Box:
2
Terrazzi:
1
Camere da letto:
3
Arredamento:
Assente
Mostra tutto
Prezzo Prezzo
Informazioni in agenzia
Proponi il tuo prezzoProponi il tuo prezzo

Altre caratteristiche

Descrizione dei locali
Bagno Con Finestra

Classe Energetica

A4
A4
A4
A4
A4
A4
A4
A4
A4
EP invernale del fabbricato:
EP estiva del fabbricato:
Anno di costruzione:
2026
Riscaldamento:
Autonomo
Tipo impianto:
A pavimento
Tipo alimentazione:
Pannelli

Ti interessa visionare l'immobile?

Fissa un appuntamento  Fissa un appuntamento

Richiedi informazioni

Clicca su Leggi per aprire l'informativa
* Questi campi sono obbligatori
Affiliato
Studio Franciacorta Srl
Via Roma, 53 25040 Corte Franca (BS)
Via Roma, 53 25040 Corte Franca (BS)
Zona: Corte Franca-Adro
Mostra su mappa
Orari: LUN - VEN : 9.00/12.30 E 14.30/19.00 SAB : 9.00/12.30
Affiliato
Studio Franciacorta Srl
Via Roma, 53 25040 Corte Franca (BS)

2026 Tecnocasa Franchising S.p.A. - P. IVA 08365160152 - Via Monte Bianco 60/A 20089 Rozzano (MI). Ogni agenzia ha un proprio titolare ed è autonoma. Privacy policy | Policy utilizzo | Cookie policy